Penthouse Rohling mit Baugenehmigung in bester Lage von Prenzlauer Berg

Objektbeschreibung

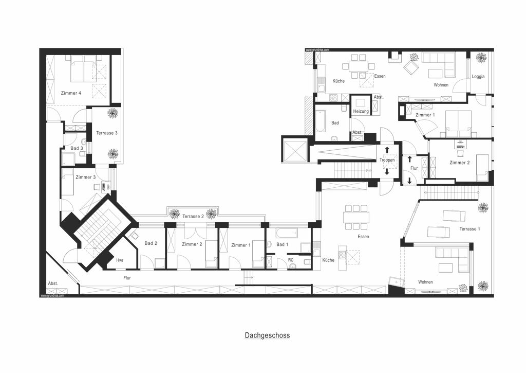
Willkommen zu einer einzigartigen Chance in einer der begehrtesten Lagen Berlins! Dieses großflächige Dachgeschossrohling bietet eine exzellente Grundlage für die Realisierung von zwei großzügigen Wohneinheiten. Mit einer Gesamtfläche von ca. 300 m² eröffnet sich hier ein vielseitiges Potenzial für kreative Investoren. Objektbeschreibung: Das Objekt befindet sich in der obersten Etage eines repräsentativen Altbaus und besticht durch seine großzügige Raumaufteilung. Bereits genehmigte Baupläne und ein fertiggestellter Estrichboden bieten den idealen Startpunkt für eine hochwertige Umgestaltung. Die Vorbereitung der Installationsleitungen ermöglicht eine unkomplizierte und schnelle Umsetzung Ihrer Wohnideen. Besonders hervorzuheben ist, dass das Haus zwar grundsätzlich mit Gas versorgt wird, aber eine abweichende Versorgung durch eine Wärmepumpe geplant und problemlos umsetzbar ist. Zusätzlich ist die Installation von Photovoltaikanlagen in erheblichem Umfang vorgesehen, um eine nachhaltige Energieversorgung sicherzustellen. Raumaufteilung: Die großzügige Wohnfläche verteilt sich auf zwei mögliche Wohnungen, die jeweils individuelle Highlights bieten: Wohnung 1: Besteht aus einem offenen Wohn- und Essbereich mit einer separaten Küche. Zwei geräumige Schlafzimmer und eine Loggia bieten zusätzlichen Komfort. Ein Kamin im Wohnzimmer sorgt für eine gemütliche Atmosphäre. Wohnung 2: Diese Einheit bietet vier flexible Räume, die als Schlafzimmer, Büro oder Hobbyraum genutzt werden können. Eine große Terrasse lädt zum Entspannen ein. Zwei Badezimmer sowie ein Hauswirtschaftsraum ergänzen die Funktionalität dieser Wohnung. Besonderheiten: Genehmigter Aufzug, der den Zugang zu den Wohnungen erleichtert. Zwei große Terrassen mit herrlichem Ausblick über die Stadt. Hochwertige Ausstattung der Infrastruktur, bereit für den Innenausbau. Geplante Nutzung einer Wärmepumpe zur alternativen Energieversorgung. Umfangreich geplante Photovoltaikanlagen für eine nachhaltige Stromerzeugung. Lage: Die Immobilie liegt in einer ruhigen und dennoch zentralen Lage in Berlin, umgeben von zahlreichen Annehmlichkeiten wie Restaurants, Einkaufsmöglichkeiten und kulturellen Einrichtungen. Die exzellente Anbindung an den öffentlichen Nahverkehr macht es zu einem idealen Wohnort für Stadtliebhaber. Investitionsmöglichkeit: Dieses Dachgeschossrohling bietet eine hervorragende Investitionsmöglichkeit. Gestalten Sie zwei luxuriöse Wohneinheiten und profitieren Sie von der steigenden Nachfrage nach hochwertigen Wohnflächen in Berlin. Verwirklichen Sie Ihre Ideen und schaffen Sie ein einzigartiges Wohnprojekt in bester Lage! Für weitere Informationen und zur Vereinbarung eines Besichtigungstermins stehen wir Ihnen gerne zur Verfügung. Nutzen Sie diese einmalige Gelegenheit und investieren Sie in ein zukunftsträchtiges Projekt im Herzen Berlins!

Sonstiges

  • Das Team von Black Label Immobilien bietet Ihnen Unterstützung in allen Bereichen rund um den Kauf einer Immobilie. Unser internationales Team spricht fließend Englisch, Deutsch, Französisch und Mandarin, zudem arbeiten wir mit einem Team aus mehrsprachigen Anwälten, Notaren und Finanzierungsberatern zusammen. Um Ihren persönlichen Ansprüchen gerecht werden zu können, bieten wir Ihnen eine große Auswahl an verschiedenen Immobilien. Senden Sie uns einfach ihre Suchkriterien inklusive:
  • Art der gesuchten Immobilie
  • Ihr Budget
  • Bevorzugter Standort
  • Suchen Sie eine Immobilie als Investment oder zum Eigenbedarf? Für Unterstützung bei der Finanzierung Ihrer Immobilie vermitteln wir Ihnen gern einen Finanzierungspartner. Sind Sie an einer Vermietung Ihrer neuen Immobilie interessiert? Hierfür bietet Black Label ein Verwaltungs-Paket sowohl für unmöblierte als auch möblierte Vermietungen, sowie einen kompletten Design- und Möblierungsservice, angepasst an ihre persönlichen Vorstellungen. Kontaktieren Sie uns, oder besuchen Sie uns in unserem Büro, um mehr Informationen zu erhalten. Alle Angaben stammen vom Verkäufer. Die Firma BLP Investments GmbH übernimmt daher keine Haftung für die Richtigkeit der Angaben. Insbesondere die Angaben zur Wohnfläche, zur Nutzfläche und zur Aufteilung der Wohn-/Nutzfläche sind von uns nicht durch ein eigenes Aufmaß oder eine eigene Wohnflächenberechnung kontrolliert worden. Die Angaben zum Baujahr sind nicht durch eine Einsicht in die Bauakte überprüft worden.

Lage

Bezirk und Kiez: Die Kopenhagener Straße liegt im beliebten Stadtteil Prenzlauer Berg, einem der angesagtesten Viertel Berlins. Die Straße verläuft parallel zur Ringbahn zwischen der Schönhauser Allee und dem Mauerpark. Dieses Gebiet ist bekannt für seinen charmanten Altbaustil und die lebendige Atmosphäre, geprägt von einer Mischung aus historischen Gebäuden und modernen Akzenten. Öffentliche Verkehrsmittel: Die Lage bietet eine hervorragende Anbindung an den öffentlichen Nahverkehr. Die U-Bahn-Stationen Schönhauser Allee und Gesundbrunnen sind schnell zu Fuß erreichbar und bieten Zugang zu den Linien U2 sowie verschiedenen S-Bahn-Linien, die eine bequeme Verbindung in andere Stadtteile ermöglichen. Anbindung an Straßen: Die Kopenhagener Straße ist eine ruhige Wohnstraße mit einer zulässigen Höchstgeschwindigkeit von 30 km/h. Sie ist über die Schönhauser Allee gut an das Straßennetz angeschlossen und bietet sowohl städtisches Flair als auch ruhige Ecken. Schulen und Kitas: In der Umgebung gibt es zahlreiche Kindergärten und Schulen, die eine gute Bildungsinfrastruktur für Familien bieten. Die Nähe zu diesen Einrichtungen macht das Viertel besonders attraktiv für Familien. Einkaufsmöglichkeiten: Verschiedene Einkaufsmöglichkeiten sind in unmittelbarer Nähe vorhanden, von kleinen Bioläden bis hin zu großen Einkaufszentren. Zudem bieten Wochenmärkte und spezialisierte Geschäfte eine breite Palette an frischen Lebensmitteln und anderen Produkten. Gastronomie und Freizeit: Die Kopenhagener Straße und die umliegenden Gebiete sind reich an gastronomischen Angeboten. Von gemütlichen Cafés über internationale Restaurants bis hin zu trendigen Bars gibt es eine vielfältige Auswahl. Der nahegelegene Mauerpark bietet zahlreiche Freizeitmöglichkeiten, darunter Picknicks, Spaziergänge und einen beliebten Flohmarkt. Auch Sport- und Freizeitaktivitäten wie Klettern sind in der Nähe möglich. Besonderheiten: Die Gegend zeichnet sich durch eine lebendige Kulturszene aus. Zahlreiche Künstler, Schauspieler und Kreative haben hier ihr Zuhause gefunden, was dem Viertel einen besonderen Charme verleiht. Trotz der Modernisierung hat sich das Viertel seinen ursprünglichen Charakter bewahrt und ist ein beliebter Drehort für Filmproduktionen.
Kopenhagener Straße 24, 10437 Berlin

Kontaktieren Sie uns

Bitte addieren Sie 1 und 3.

Ihre Daten werden nur zur Beantwortung Ihrer Anfrage genutzt. Wir geben Ihre Daten nicht weiter. Mehr Informationen zum Umgang mit Nutzer-Daten finden Sie in unserer Datenschutzerklärung.