Mit einer liebevollen Renovierung wird diese Wohnung zu einem gemütlichen Zuhause!

Objektbeschreibung

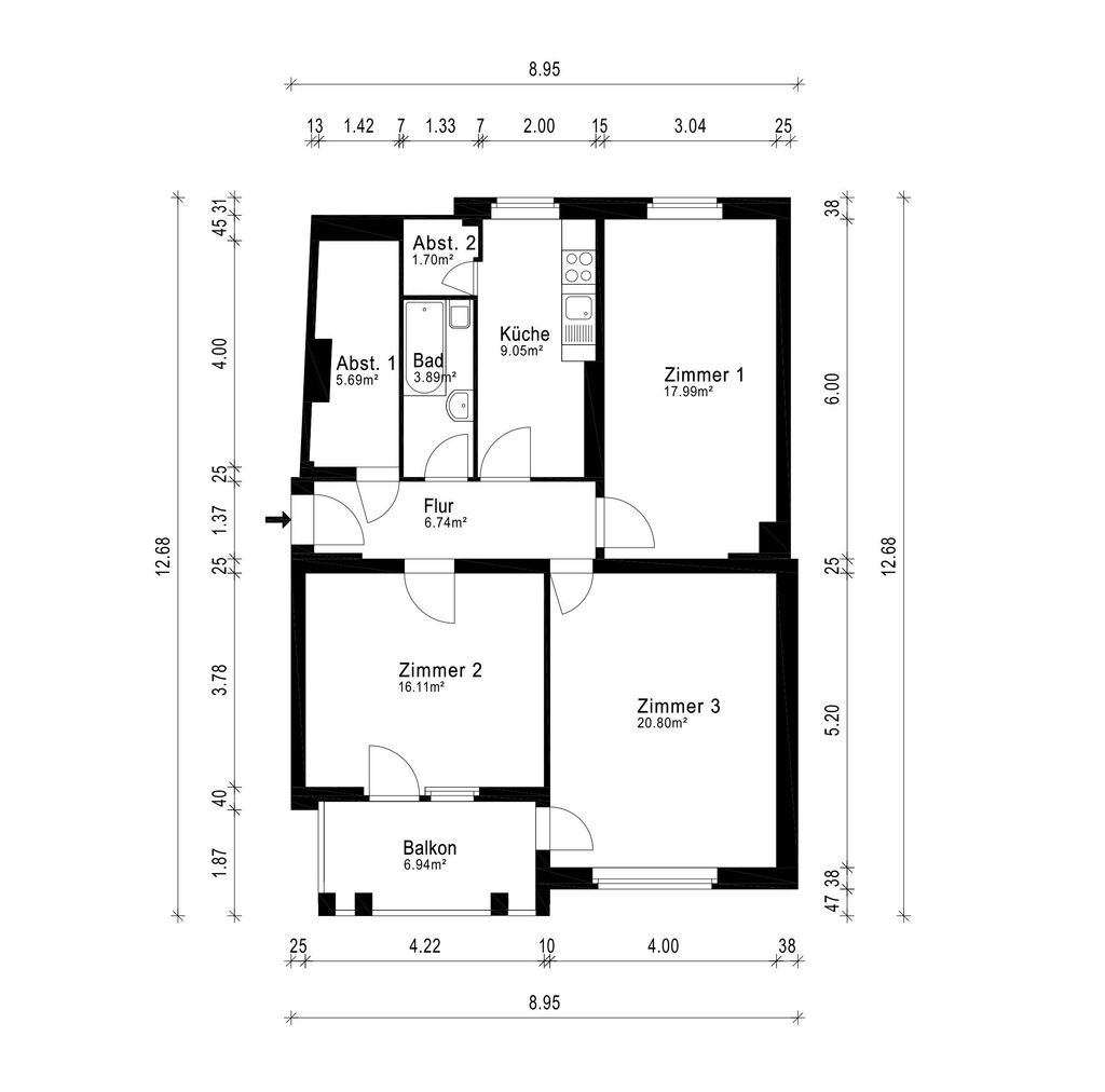
  • In zentraler Lage von Berlin befindet sich diese 3-Zimmer-Etagenwohnung im 3. Obergeschoss eines 5-stöckigen Wohnhauses. Das Gemeinschaftseigentum wurde 1994 modernisiert. Die insgesamt 89,18 m² Wohnfläche verteilen sich auf ein geräumiges Wohnzimmer, zwei Schlafzimmer, eine Küche, ein Badezimmer und einen Flur. Die Wohnung verfügt über einen Keller sowie einen Abstellraum, der zusätzlichen Stauraum bietet. Die Wohnung ist sanierungsbedürftig und bietet viel Potenzial zur individuellen Gestaltung nach eigenen Vorstellungen. Beim Betreten der Wohnung gelangt man in den Flur, von dem links ein Abstellraum, das Bad und die Küche abgehen. Die Küche verfügt zudem über einen kleinen Abstellraum. Geradeaus führt der Flur in eines der drei Zimmer. Rechts befinden sich die beiden weiteren Zimmer, darunter das größere mit Balkonzugang. Ein Highlight der Wohnung ist der Balkon, der zum gemütlichen Verweilen im Freien einlädt und einen schönen Ausblick bietet. Die Lage in Berlin bietet eine gute Infrastruktur mit Einkaufsmöglichkeiten, Schulen und öffentlichen Verkehrsmitteln in unmittelbarer Nähe. Insgesamt bietet diese Etagenwohnung viel Potential für Käufer, die gerne kreativ tätig sind und eine eigene Wohnung selbst gestalten möchten. Greifen Sie zu und vereinbaren Sie noch heute einen Besichtigungstermin!
  • This 3-room apartment on the 3rd floor of a 5-storey residential building is centrally located in Berlin. The building was modernized in 1994. The total living space of 89.18 m² is distributed over a spacious living room, two bedrooms, a kitchen, a bathroom and a hallway. The apartment has a cellar and a storage room, which offers additional storage space. The apartment is in need of renovation and offers plenty of potential for individual design according to your own ideas. Upon entering the apartment, you enter the hallway, from which a storage room, the bathroom and the kitchen lead off to the left. The kitchen also has a small storage room. Straight ahead, the hallway leads to one of the three rooms. To the right are the two other rooms, including the larger one with balcony access. A highlight of the apartment is the balcony, which invites you to linger outside and offers a beautiful view. The location in Berlin offers a good infrastructure with shopping facilities, schools and public transport in the immediate vicinity. Overall, this apartment offers a lot of potential for buyers who like to be creative and want to design their own apartment. Take your chance and arrange a viewing today!

Ausstattung

  • Balkon
  • Abstellräume
  • Keller
  • balcony
  • cellar
  • storage rooms

Sonstiges

  • Das Team von Black Label Immobilien bietet Ihnen Unterstützung in allen Bereichen rund um den Kauf einer Immobilie. Unser internationales Team spricht fließend Englisch, Deutsch, Französisch und Mandarin, zudem arbeiten wir mit einem Team aus mehrsprachigen Anwälten, Notaren und Finanzierungsberatern zusammen. Um Ihren persönlichen Ansprüchen gerecht werden zu können, bieten wir Ihnen eine große Auswahl an verschiedenen Immobilien. Senden Sie uns einfach ihre Suchkriterien inklusive:
  • Art der gesuchten Immobilie
  • Ihr Budget
  • Bevorzugter Standort
  • Suchen Sie eine Immobilie als Investment oder zum Eigenbedarf? Für Unterstützung bei der Finanzierung Ihrer Immobilie vermitteln wir Ihnen gern einen Finanzierungspartner. Sind Sie an einer Vermietung Ihrer neuen Immobilie interessiert? Hierfür bietet Black Label ein Verwaltungs-Paket sowohl für unmöblierte als auch möblierte Vermietungen, sowie einen kompletten Design- und Möblierungsservice, angepasst an ihre persönlichen Vorstellungen. Kontaktieren Sie uns, oder besuchen Sie uns in unserem Büro, um mehr Informationen zu erhalten. Alle Angaben stammen vom Verkäufer. Die Firma BLP Investments GmbH übernimmt daher keine Haftung für die Richtigkeit der Angaben. Insbesondere die Angaben zur Wohnfläche, zur Nutzfläche und zur Aufteilung der Wohn-/Nutzfläche sind von uns nicht durch ein eigenes Aufmaß oder eine eigene Wohnflächenberechnung kontrolliert worden. Die Angaben zum Baujahr sind nicht durch eine Einsicht in die Bauakte überprüft worden.

Lage

  • Die Wohnung befindet sich in sehr attraktiver Lage in Berlin Süd-West. Sie vereint eine zentrale und ruhige Wohngegend gleichermaßen! Im idyllischen Bezirk Lichterfelde West gelegen befinden sich fußläufig erreichbar Schulen, Ärzte, Kindergärten, Supermärkte und zahlreiche Parks und Grünflächen. In unmittelbarer Nähe zum S-Bahnhof Botanischer Garten und der S-Bahnlinie 1, der U-Bahnlinie 9 sowie den Buslinien M85, 285, 283, 188 und damit hervorragend angeschlossen an das Netz des öffentlichen Berliner Nahverkehrs bietet dieses Objekt viele Vorteile.
  • The apartment is in a very attractive location in south-west Berlin. It combines a central and quiet residential area in equal measure! Located in the idyllic district of Lichterfelde West, schools, doctors, kindergartens, supermarkets and numerous parks and green spaces are all within walking distance. In the immediate vicinity of the Botanischer Garten S-Bahn station and S-Bahn line 1, U-Bahn line 9 and bus lines M85, 285, 283, 188 and thus excellently connected to the Berlin public transport network, this property offers many advantages.
Roonstraße 31 A, 12203 Berlin

Kontaktieren Sie uns

Bitte rechnen Sie 9 plus 1.

Ihre Daten werden nur zur Beantwortung Ihrer Anfrage genutzt. Wir geben Ihre Daten nicht weiter. Mehr Informationen zum Umgang mit Nutzer-Daten finden Sie in unserer Datenschutzerklärung.