Bezugsfreie Dachgeschosswohnung in den Floratürmen in Pankow

Objektbeschreibung

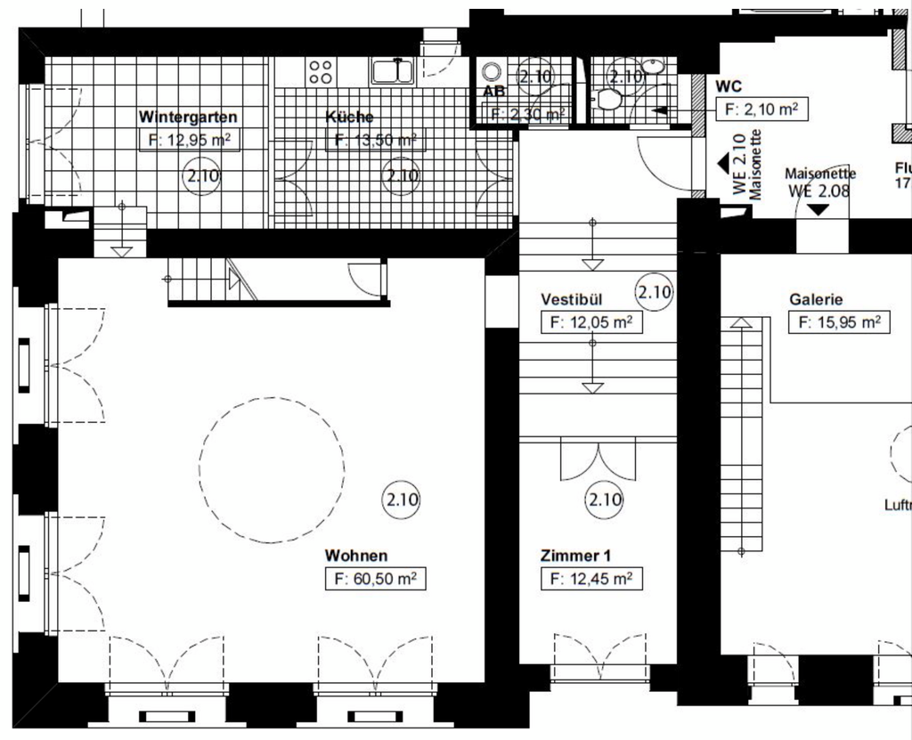
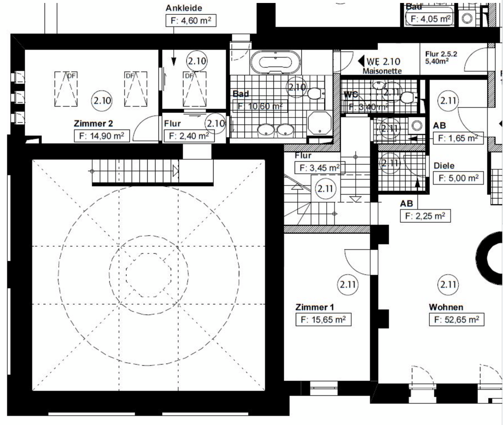
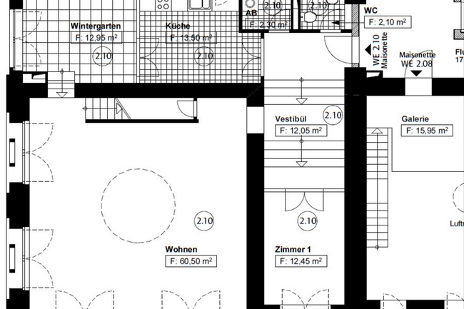
Bereits beim Betreten dieser Dachgeschosswohnung spürt man: Hier wurde etwas Besonderes geschaffen. In den Floratürmen, einem stilvoll sanierten Teil der ehemaligen Alten Mälzerei, verbindet sich Industriearchitektur des frühen 20. Jahrhunderts mit modernem, hochwertigem Wohnkomfort. . Im Eingangsbereich erwarten Sie ein erster Wohnraum, eine kompakte Einbauküche sowie ein Gäste-WC. Über nur wenige Stufen gelangen Sie in den höher gelegenen Bereich mit einem weiteren Zimmer sowie dem großzügigen Wohn- und Essbereich, dem Herzstück der Wohnung. . Ein eindrucksvolles Tonnengewölbe aus Sichtmauerwerk, ergänzt durch Akustikelemente unter der Gewölbedecke, verleiht dem Raum beeindruckende Tiefe und Offenheit. Die außergewöhnliche Deckenhöhe und das einfallende Licht erzeugen eine fast sakrale Wirkung – ideal für stilvolle Abende, kreative Projekte oder entspannte Rückzugsorte mitten in der Stadt. . Große Fensterflächen eröffnen einen herrlichen Blick ins Grüne und über die Dächer Pankows. Besonders charmant ist die gemütliche Sitzecke mit Ausblick, die zum Verweilen und Lesen im Tageslicht einlädt. . Über eine interne Treppe gelangt man in das Obergeschoss der Wohnung, das sich harmonisch in die Architektur einfügt. Hier befinden sich ein weiterer Raum mit Oberlicht – ideal als ruhiges Homeoffice oder Atelier –, das Masterbad, ein praktischer Abstellraum sowie ein zweiter Zugang über das Treppenhaus als Fluchtweg. . Das Tageslichtbad im Dachgeschoss ist ein weiteres Highlight: ausgestattet mit einer Dusche, Badewanne, Doppelwaschbecken und stilvollen Fliesen – ein Ort zum Entspannen und Wohlfühlen. . Auch funktional überzeugt die Wohnung auf ganzer Linie: Die kleine Küche ist kompakt und effizient gestaltet und der großzügige Flur verbindet die Wohnbereiche, das Gäste-WC und die Küche elegant miteinander verbindet. . Die gesamte Wohnung ist lichtdurchflutet, offen geschnitten und ruhig gelegen – mit einem feinen Gespür für Materialien, Raumwirkung und Atmosphäre gestaltet. Ein Kellerraum sowie ein Aufzug runden das komfortable Wohnangebot ab. Zusätzlich sind zwei Tiefgaragenstellplätze zu erwerben. . Diese Wohnung ist mehr als nur ein Zuhause – sie ist ein Raum für Stil, Geschichte und Individualität. Vereinbaren Sie jetzt einen persönlichen Besichtigungstermin und erleben Sie diesen besonderen Ort live vor Ort!

Ausstattung

  • Die Wohnung – Repräsentativ. Ruhig. Inspirierend. .
  • 4 Zimmer, offen und großzügig aufgeteilt Wohn-/Essbereich unter
  • massiver Kappengewölbedecke mit Raumhöhen bis ca. 5 m
  • Loftcharakter mit freigelegtem Sichtmauerwerk
  • Abgehängte Akustikdecken für optimalen Schallschutz
  • Echtholzparkett, große Fenster, viel Tageslicht
  • Separate, voll ausgestattete kleine Einbauküche
  • Gäste-WC und luxuriöses Tageslichtbad mit Dusche, Wanne, Doppelwaschbecken
  • Kellerbateil
  • 2 Tiefgaragenstellplätze à 45.000,- Euro
  • Bezugsfrei – sofort verfügbar WE 2.10 Hausgeld 2025: 624,00€ Gesamtsumme Erhaltungsrücklage Wohneinheiten zum 31.12.2023: 63.940,44 € TG 34 Hausgeld 2025: 34,00€ TG 49 Hausgeld 2025: 34,00€ Gesamtsumme Erhaltungsrücklage Tiefgaragen zum 31.12.2023: 59.958,33 €

Sonstiges

Provisionspflichtig für den Käufer. Die Provision beträgt 3,57% inkl. 19 % USt. und ist verdient und fällig mit Kaufvertragsunterzeichnung. Es wurde ein Maklervertrag mit dem Verkäufer in gleicher Höhe abgeschlossen. Alle gemachten Angaben zu Objekten sind ohne Gewähr und basieren ausschließlich auf Informationen, die Immosiv - Exklusive Immobilien von meinem Auftraggeber oder von Dritten übermittelt wurden. Ich übernehme keine Gewähr für die Richtigkeit, die Vollständigkeit, sowie die Aktualität dieser Angaben, insbesondere die Angaben zur Wohnfläche, zur Nutzfläche und zur Aufteilung der Wohn-/Nutzfläche sind von mir nicht durch ein eigenes Aufmaß oder eine eigene Wohnflächenberechnung kontrolliert und die Angaben zum Baujahr sind nicht durch eine Einsicht in die Bauakte überprüft worden. Maßgeblich für den Vertragsgegenstand ist immer der notarielle Kaufvertrag, Vermögensschaden-Haftpflichtversicherung abgeschlossen bei Hans John GmbH Versicherungsmakler in Hamburg.

Lage

Lage – urban, ruhig, hervorragend angebunden . Im beliebten Berliner Stadtteil Pankow, inmitten eines charmanten Quartiers mit Geschichte, liegen die Floratürme und Hesperidenhöfe – ein Teil der ehemaligen Alten Mälzerei, heute ein stilvolles Ensemble mit einzigartiger Architektur. Die Umgebung bietet urbanes Lebensgefühl mit viel Grün, kurzen Wegen und exzellenter Infrastruktur. Ruhig und grün gelegen, eingebettet in eine umfangreiche Infrastruktur mit diversen Einkaufsmöglichkeiten, Cafes, Restaurants, Schulen, Kindergärten, Parkanlagen usw.! Innerhalb weniger Minuten erreicht man fußläufig S- und U-Bahn, der Bahnanschluss A 114 ist nur 2 km entfernt.
Neue Schönholzer Straße 26d, 13187 Berlin

Kontaktieren Sie uns

Bitte addieren Sie 2 und 6.

Ihre Daten werden nur zur Beantwortung Ihrer Anfrage genutzt. Wir geben Ihre Daten nicht weiter. Mehr Informationen zum Umgang mit Nutzer-Daten finden Sie in unserer Datenschutzerklärung.