Wohnkomfort auf ca. 170m² Wohn-/Nutzfläche

Objektbeschreibung

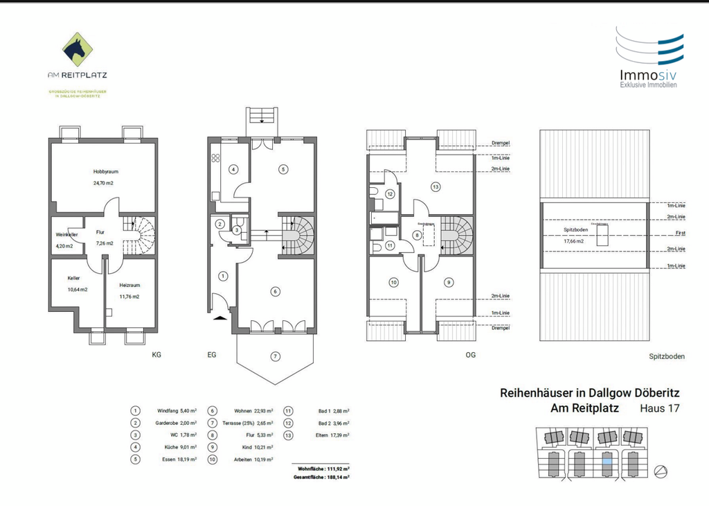
Das moderne, komfortabel ausgestattete Reihenhaus besticht mit lichtdurchfluteten Räumen und einer Wohnfläche von 111,92m² bzw. einer Wohn-/ Nutzfläche von 170,48m². . Der wohldurchdachte Grundriss auf drei Etagen bietet viel Platz zur Entfaltung für die ganze Familie. . Der geräumige Wohnbereich im Erdgeschoss ist durch zwei Stufen vom Essbereich getrennt, von welchem man in die Küche gelangt aber auch zum Garten, der zum Entspannen, Genießen und Grillen einlädt. In der separaten Küche wird Komfort großgeschrieben: Mit der planvollen Anordnung und kurzen Wegen wird das Kochen hier zum Vergnügen. . Im Obergeschoss sorgen 3 Zimmer sowie 2 Bäder mit WC und Wanne bzw. Dusche für Privatsphäre. Hier kann neben dem Schlafzimmer mit einem En-Suite-Bad und einem Kinderzimmer, das Arbeitszimmer vom Rest der Wohnung separiert und konzentriert gearbeitet werden. . Das Kellergeschoss ist komfortabel ausgebaut sodass hier beispielsweise ein Hobbyraum, ein Stauraum und ein Weinkeller, neben dem Heizungsraum für die Gasetagenheizung genutzt werden können. . Darüber hinaus kann das Dachgeschoss als großzügiger Abstellraum dienen. Direkt am Haus besteht die Möglichkeit den Pkw abzustellen. . Das Reihenhaus gehört zu einer 1997 gebauten kleinen Reihenhaussiedlung am östlichen Ortsrand von Dallgow-Döberitz. Die Siedlung grenzt an zwei Seiten an die Pferdekoppeln des Reitsportparks Dallgow, nur getrennt durch schmale Pfade. Gegenüber der Anlage gibt es eine Kita und daneben einen öffentlichen Spielplatz. Ein ruhiges und wenig befahrenes Umfeld, in welchem man entspannt seine freie Zeit mit Familie und Freunden genießen, seinen Hobbys nachgehen und Energie auftanken kann. Die Nachbarschaft zeichnet sich durch kleine, stilvolle Gutshöfe und Einfamilienhäuser sowie Stallungen, Reiterhöfe und gemütliche Hotels aus. Wald, Wiesen und Pferdekoppeln rahmen dieses beschauliche Areal ein. Sehr idyllisch und ideal für Familien und Pferdeliebhaber. Aber auch private Kapitalanleger finden hier ein interessantes Objekt für die Altersvorsorge und als Investment.

Ausstattung

  • großes Platzangebot mit einer Wohn-/ Nutzfläche von 170,48 m²
  • Erdgeschoss mit geräumigem Wohn- und Essbereich
  • Terrasse mit eigenem Garten
  • Einbauküche
  • Gäste-WC, Garderobe und Windfang im Erdgeschoss.
  • hohes Untergeschoss mit Platz für einen Weinkeller, Abstellraum, einem Hobbyraum und dem Heizungsraum
  • Gasfeuerungsanlage von Vaillant mit Warmwasseraufbereitung
  • Obergeschoss mit 3 Zimmern und zwei Bädern (1 Dusch- und 1-Wannenbad je mit WC und Waschbecken)
  • Dachgeschoss als Speicher ausgebaut
  • Stellplatz

Sonstiges

Provisionsfrei für den Käufer. Alle gemachten Angaben zu Objekten sind ohne Gewähr und basieren ausschließlich auf Informationen, die uns von unserem Auftraggeber oder von Dritten übermittelt wurden. Wir übernehmen keine Gewähr für die Richtigkeit, die Vollständigkeit, sowie die Aktualität dieser Angaben, insbesondere die Angaben zur Wohnfläche, zur Nutzfläche und zur Aufteilung der Wohn-/Nutzfläche sind von uns nicht durch ein eigenes Aufmaß oder eine eigene Wohnflächenberechnung kontrolliert und die Angaben zum Baujahr sind nicht durch eine Einsicht in die Bauakte überprüft worden. Vermögensschaden-Haftpflichtversicherung abgeschlossen bei Hans John GmbH Versicherungsmakler in Hamburg.

Lage

Wer aus der Großstadt raus, aber deren Vorzüge trotzdem nutzen will, findet in Dallgow-Döberitz den idealen Wohnort: direkt im Umland, nur 8 km nordwestlich von Berlin. Neben seiner idyllischen Lage umgeben von Natur, der direkten und kurzen Anbindung an Berlin und den hervorragenden Einkaufsmöglichkeiten hat der Ort ein absolutes Alleinstellungsmerkmal: Dallgow-Döberitz ist in der Reiterszene als Turnierstandort bekannt. Dort gibt es etwa 400 Pferde, 250 weitere in den beiden Nachbardörfern. Am östlichen Ortsrand, unmittelbar am Naturschutzgebiet Döberitzer Heide, liegt die Reihenhaussiedlung in einer ruhigen Gegend. Mit der Buslinie 670, nur 200 Meter entfernt, gelangt man zum Bahnhof Dallgow-Döberitz. Von dort erreicht man mit der Regionalbahn in nur 20 Minuten die Berliner City-West. Die nächstgelegene Autobahnanschlussstelle ist Berlin-Spandau an der A10 (westlicher Berliner Ring), nur wenige Fahrminuten entfernt. Jedoch geht oder fährt man aber auch gern in den Nachbarort, um im Hofladen leckere Lebensmittel und Spezialitäten frisch einzukaufen. Die Infrastruktur in Dallgow-Döberitz ist modern und umfassend: Einkaufsmöglichkeiten, Supermarkt und Discounter, Ärzte, Restaurants, alle Schultypen, Kitas, Seniorenresidenz, Bibliothek und vieles mehr – wie Spielplätze, Tanzschulen und Fitnessstudios. Der Havelpark mit seinem vielseitigen Shopping- und Gastronomieangebot auf ca. 59.200 m² ist nur 3 Autominuten entfernt. Im Gewerbepark „Döberitzer Heide“ haben sich zahlreiche Firmen, Büros und Lager aus Handel, Produktion und Dienstleistungen, darunter ein Supermarkt und eine Tankstelle, angesiedelt. Aber auch ein Erdbeer-Erlebnishof, das Olympische Dorf und eine groß angelegte Outlet-Shopping- Anlage in Form eines Dorfes ist auf kurzen Wegen zu erreichen.
Am Reitplatz 17, 14624 Dallgow-Döberitz

Kontaktieren Sie uns

Bitte rechnen Sie 4 plus 2.

Ihre Daten werden nur zur Beantwortung Ihrer Anfrage genutzt. Wir geben Ihre Daten nicht weiter. Mehr Informationen zum Umgang mit Nutzer-Daten finden Sie in unserer Datenschutzerklärung.