Moderne Luxus-Maisonette Wohnung mit Terrasse und Ostsee-Blick

Objektbeschreibung

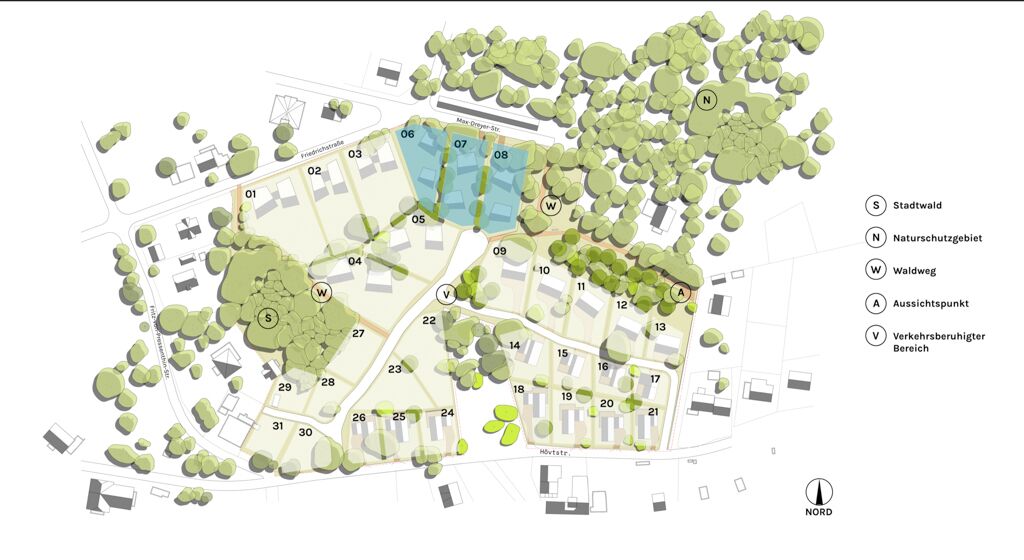
Die großzügige 5-Zimmer-Wohnung mit ca. 153m² Wohnfläche verteilt sich auf das Ober-und Dachgeschoss mit großer südlich ausgerichteter Terrasse, die einen herrlichen Blick auf die Ostsee und die Naturlandschaft der Südküste von Göhren ermöglicht. Während sich im Obergeschoss drei Zimmer, die zum Arbeiten und Schlafen genutzt werden liegen, ebenso wie zwei Badezimmer, befindet sich der offene Wohn- und Essbereich mit einem weiteren Studio im Dachgeschoss mit bodentiefen Fensterfronten. Optimale Lichtverhältnisse, ökologisches und energieeffizientes Wohnen in durchdachten Architektenhäusern bieten die beste Voraussetzung für einen Wohnsitz, der Arbeiten und Leben in der Natur am Meer möglich macht. Die Stadthäuser sind ein Bestandteil des Naturquartier Rügen in Göhren, südöstlich gelegen auf der Halbinsel Mönchgut. In enger Zusammenarbeit mit ausgewählten Architekten legen die Projektentwickler den Fokus auf ökologische und nachhaltige Bauweise, auf reduzierte und klare Architektur- und Formensprache und auf gemeinschaftliches Wohnen auf einem der letzten idyllisch-naturbelassenen Grundstücke.

Sonstiges

  • Das Team von Black Label Immobilien bietet Ihnen Unterstützung in allen Bereichen rund um den Kauf einer Immobilie. Unser internationales Team spricht fließend Englisch, Deutsch, Französisch und Mandarin, zudem arbeiten wir mit einem Team aus mehrsprachigen Anwälten, Notaren und Finanzierungsberatern zusammen. Um Ihren persönlichen Ansprüchen gerecht werden zu können, bieten wir Ihnen eine große Auswahl an verschiedenen Immobilien. Senden Sie uns einfach ihre Suchkriterien inklusive:
  • Art der gesuchten Immobilie
  • Ihr Budget
  • Bevorzugter Standort
  • Suchen Sie eine Immobilie als Investment oder zum Eigenbedarf? Für Unterstützung bei der Finanzierung Ihrer Immobilie vermitteln wir Ihnen gern einen Finanzierungspartner. Sind Sie an einer Vermietung Ihrer neuen Immobilie interessiert? Hierfür bietet Black Label ein Verwaltungs-Paket sowohl für unmöblierte als auch möblierte Vermietungen, sowie einen kompletten Design- und Möblierungsservice, angepasst an ihre persönlichen Vorstellungen. Kontaktieren Sie uns, oder besuchen Sie uns in unserem Büro, um mehr Informationen zu erhalten. Alle Angaben stammen vom Verkäufer. Die Fa. BLP Investments GmbH übernimmt daher keine Haftung für die Richtigkeit der Angaben. Insbesondere die Angaben zur Wohnfläche, zur Nutzfläche und zur Aufteilung der Wohn-/Nutzfläche sind von uns nicht durch ein eigenes Aufmaß oder eine eigene Wohnflächenberechnung kontrolliert worden. Die Angaben zum Baujahr sind nicht durch eine Einsicht in die Bauakte überprüft worden.

Lage

Rügen ist immer eine gute Wahl, wenn man dauerhaft dort leben will, wo andere Menschen Urlaub machen. Das Naturquartier Rügen liegt zwischen der Friedrichstrasse und der Hövtstrasse in Göhren – einerseits fußläufig zum Meer, andererseits angrenzend an das Ortszentrum. Ein Fußweg von der Hövtstrasse durch das Naturschutzgebiet einer Dünenlandschaft führt in 5 Gehminuten zum naturbelassenen Südstrand, der in aller Ruhe jenseits jeglicher touristischer Servicedienstleistung zu erholsamem Verweilen einlädt. Ein Spaziergang quer durch das ehemalige Fischerdorf Göhren mit reizenden, historischen Reetdach-Häusern leitet direkt an den belebten Nordstrand mit vielfältigem Angebot für genussvolles Leben. Vom Naturquartier aus fußläufig erreichbar liegen zwei gut sortierte Supermärkte zum Einkauf für den täglichen Bedarf. Supermärkte im 6 Kilometer entfernten Baabe ermöglichen Großeinkäufe.
Max-Dreyer-Straße 8b, 18586 Göhren

Kontaktieren Sie uns

Bitte addieren Sie 2 und 3.

Ihre Daten werden nur zur Beantwortung Ihrer Anfrage genutzt. Wir geben Ihre Daten nicht weiter. Mehr Informationen zum Umgang mit Nutzer-Daten finden Sie in unserer Datenschutzerklärung.