KAISERZWEI - Traumwohnung im kernsanierten Altbau

Objektbeschreibung

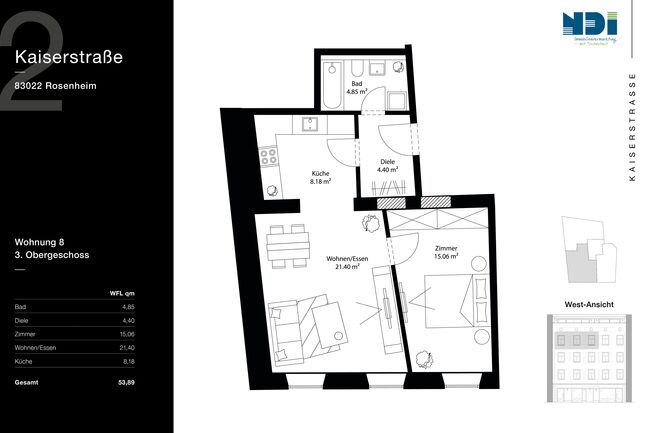
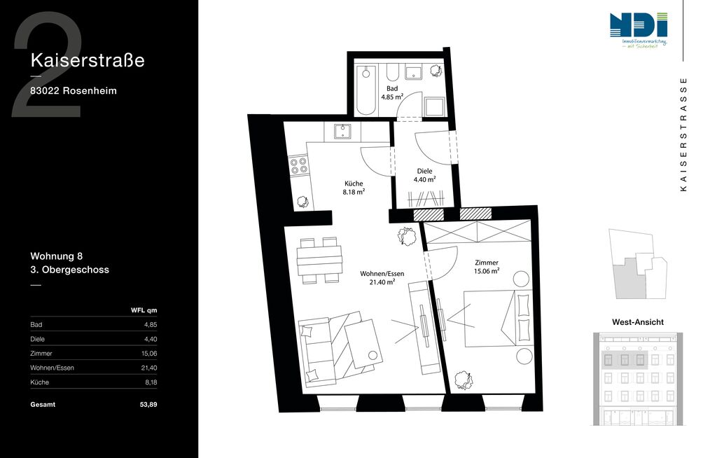
Kann denn wohnen schöner sein? Mitten in Rosenheim, zwischen grünen Markt und Loretowiese wurde dieses schöne, unter Ensembleschutz stehende Haus vollständig entkernt und modernisiert. Diese 2,5 Zimmer Wohnung ist besonders hell und offen gestaltet. In der Diele ist Platz für einen schönen Schrank und von hier geht es ins das Bad mit großer, bodentiefer Regendusche. Vom Flur geht es auch in den großen Wohn-Küchen-Essbereich mit über 30 qm, der besonders hell und wohnlich ist. Er punktet mit einer tollen Schreinerküche mit hochwertigen Geräten. Der große Schlafraum rundet dieses Paradies ab. In der gesamten Wohnung profitierst Du von einer effizienten Fußbodenheizung und hochwertigen Fliesen in edler Holzoptik, in einigen Räumen sorgen moderne LEDs für angenehmes Licht.

Ausstattung

  • Kernsanierung 2023/24!- alles Neu! Neue Elektrik, neue Heizung, neuer Estrich, neue Fenster, neue Türen, neuer Brandschutz, neue Bäder!
  • moderne, effiziente Fußbodenheizung
  • Stuck (teilw.)
  • hochwertige Fliesen mit Holzoptik
  • Penthouse: hochwertiger Eichenparkett
  • teilweise oder komplett moderne LED-Spots
  • bodentiefe Regenduschen
  • hochwertige Schreiner Küchen mit top-modernen Elektrogeräten, z.T. Smarthomefähig
  • traumhafte Altbaugrundrisse mit Neubaustandard
  • Penthouse: Dachterrasse, Atrium und Loggia
  • schnelles Internet (1000 MBit/s)
  • Aufzug
  • Fahrradraum im EG
  • Niedrige Nebenkosten, da Fernwärme und Solarthermie
  • Servicepaket: inkl. 14-tägiger Treppenhausreinigung, Winterdienst, Mieterportal
  • Energieeffizienz: 19,87 kwh(m²a) - Energieeffizienzklasse A+ Auf Wunsch: Stellplatz in der Pernauerstraße / Austraße (ca. 1,2 km entfernt) für 65 EUR möglich.

Sonstiges

Fahrradabstellplätze im EG Mieterservices inkl.: Mieterportal, Hausmeister, Treppenhausreinigung und Schneeräumung Das Nutzungsentgelt für die hochwertige Schreinerküche ist in der Warmmiete bereits berücksichtigt.

Lage

Die Kaiserstraße 2 liegt direkt am grünen Markt, unweit von Geschäften, Lokalen, Apotheke, medizinischer Versorgung und der Fußgängerzone der Rosenheimer Innenstadt. Direkt nebenan befindet sich die historische "Alte Apotheke" mit dem bekannten Kräuterkammerl, fussläufig sind alle Schulen, Kindergärten, Krippen und Einkaufsmöglichkeit vorhanden.
Kaiserstraße 2, 83022 Rosenheim

Kontaktieren Sie uns

Bitte rechnen Sie 7 plus 3.

Ihre Daten werden nur zur Beantwortung Ihrer Anfrage genutzt. Wir geben Ihre Daten nicht weiter. Mehr Informationen zum Umgang mit Nutzer-Daten finden Sie in unserer Datenschutzerklärung.